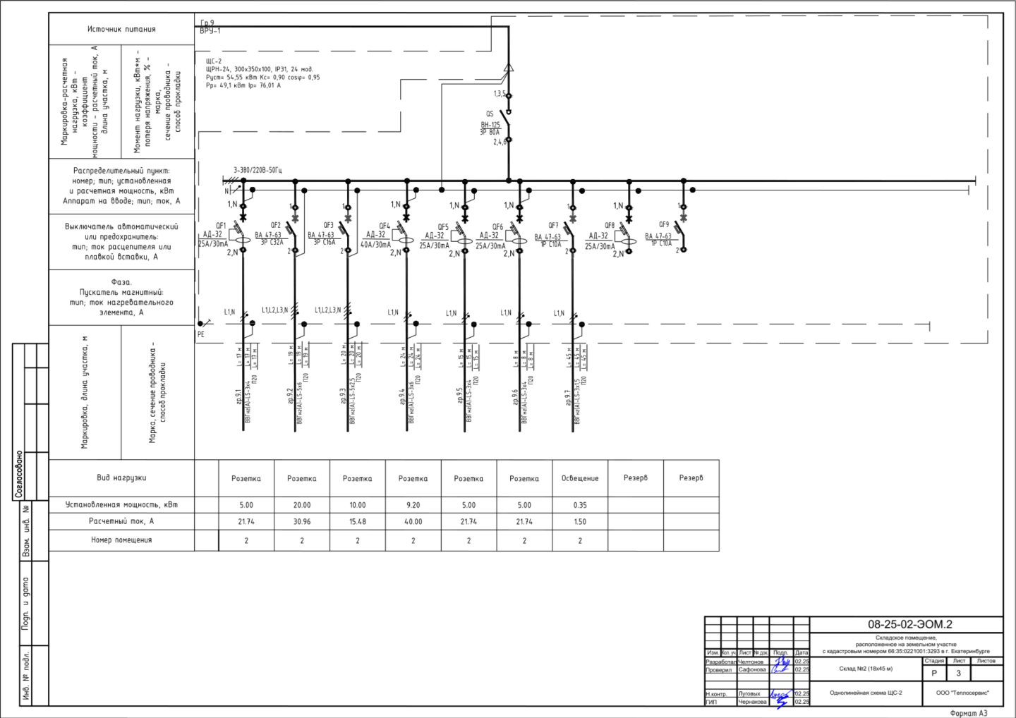
Полное наименование: Складское помещение, расположенное на земельном участке с кадастровым номером 66:35:0221001:3293 в г. Екатеринбурге. Склад №2 (18х45 м)
Заказчик: ООО «ТЕХБЕТОН»
Генподрядчик: ООО «Теплосервис»
Дата реализации: 2025
Вендоры: EKF, PromLED, Rexant, Инкотекс

