Электроснабжение и сети связи жилого здания
Реконструкция жилого здания с подземной автостоянкой, расположенном по адресу: г. Москва, ул. Александра Солженицына, 23Б
Телефонизация
Реконструкция жилого здания с подземной автостоянкой, расположенном по адресу: г. Москва, ул. Александра Солженицына, 23Б
Золотоизвлекательная фабрика на руднике «Бадран» ГРК «Западная», Республика Саха (Якутия), РФ
Многоэтажный жилой дом № 2 со встроенными помещениями нежилого назначение в квартале 20 в планировочном районе «Академический» г. Екатеринбурга, II очередь
Многофункциональный жилой комплекс с подземными автостоянками и ДОУ на 160 мест, расположенные по адресу: г. Санкт-Петербург, проспект Мечникова, дом 40, лит. А, кадастровый номер земельного участка 78:10:0005142:1456
Гостиничный комплекс «Гранд Отель Агой» категории 5, расположенный по адресу: Краснодарский край, Туапсинский район, с. Агой, ул. Центральная, 39
Объект капитального строительства: спортивно-досуговый комплекс по адресу: г. Москва, пос. Московский, д. Говорово (земельные участки 77:17:0110505:433, 77:17:0110505:434, 77:17:0110505:435, 50:21:0110502:513, часть 77:17:0000000:3925)
Комплекс многоквартирных жилых домов со встроенно-пристроенными нежилыми помещениями, расположенный по адресу: г. Иваново, ул. Смирнова, 86
Жилая застройка с объектами социальной и инженерной инфраструктуры. Третья очередь. Многоквартирный жилой дом, корпус 42 с наружными инженерными сетями по адресу: Московская область, городской округ Пушкинский, в районе микрорайона Новая Деревня, г. Пушкино
Поликлиника №99 по адресу: г. Москва, ул. Староалексеевская, д.18
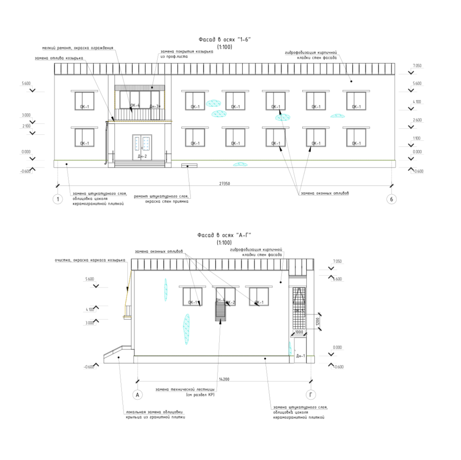
Капитальный ремонт ГБУЗ «Городская поликлиника № 180 Департамента здравоохранения города Москвы», расположенного по адресу: г. Москва, СЗАО, район Митино, Уваровский пер., д. 4