Полное наименование: Жилой дом с подземной автостоянкой, инженерными сетями и благоустройством территории (со сносом жилых зданий по адресам: ул. Бутлерова, д.34, корп.1; ул. Бутлерова, д.34, корп.2; ул. Бутлерова, д.36, корп.1; ул. Бутлерова, д.36, корп.2) по адресу: микрорайон 6 района Коньково, зона № 1.2 (Юго-Западный административный округ)
Заказчик: АО «МОСФУНДАМЕНТСТРОЙ-6»
Генподрядчик: ООО «Проектная группа ПРОФИТ»
Дата реализации: 2023
Вендоры: ABB, DoorHan, EKF, Hyperline, IEK, NED, NIKOMAX, OSNOVO, QTECH, RVi, Schneider Electric, Smartec, Wilo, Авангард, Аргус-Спектр, Бастион, ДКС, ОВЕН, Планар, Промрукав, Рубеж, Связь инжиниринг М, Связьстройдеталь, Текон-Автоматика, Тепловодохран, Тепломаш, Тромбон, ЦМО, Элтис, ЮПТП
Разработанные разделы:
- Система этажного оповещения (оповещение о ЧС);
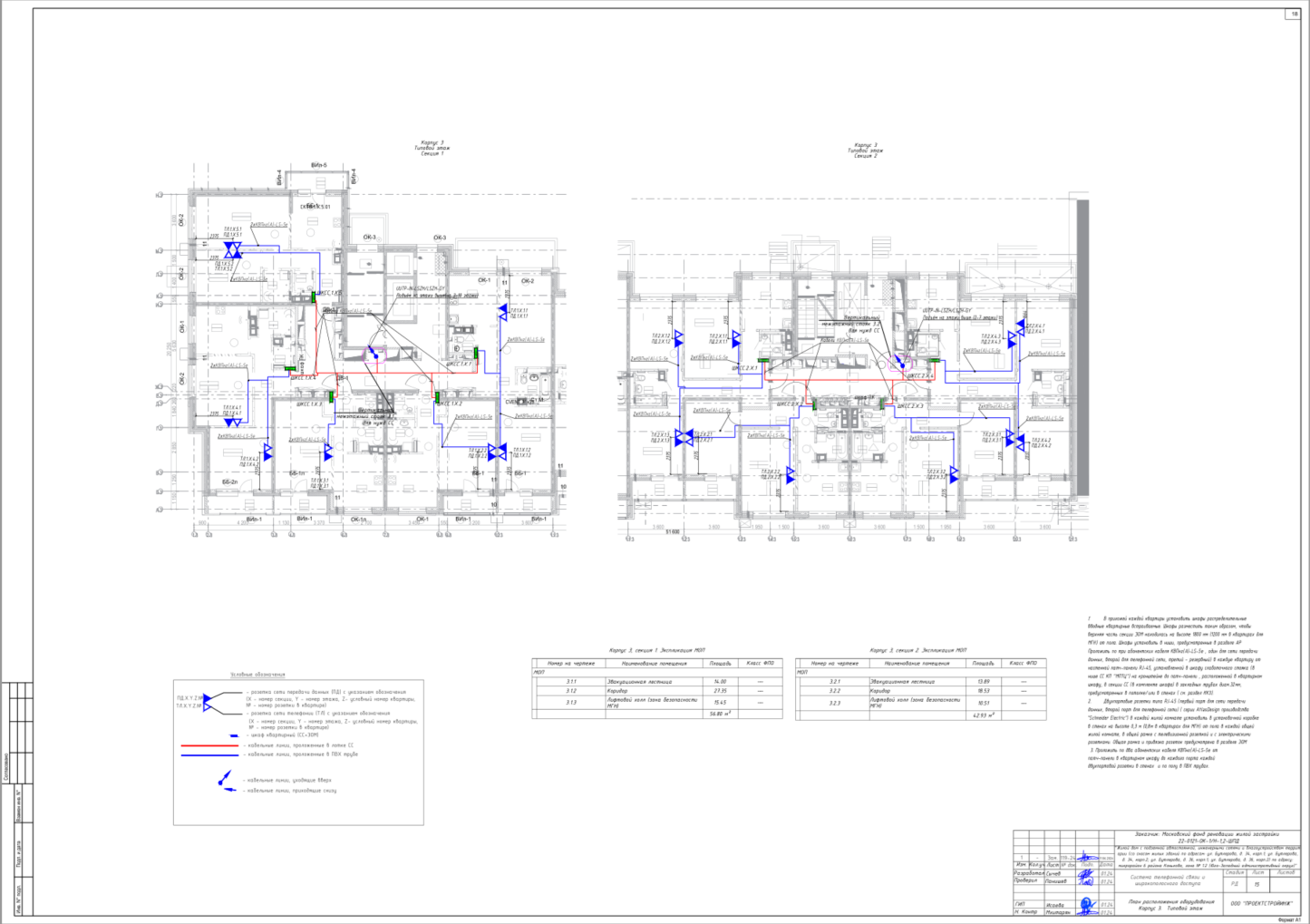
- Сети кабельного телевидения;
- Сети проводного радиовещания;
- Сети телефонной связи и широкополосного доступа.;
- Закладные элементы домовых слаботочных систем;
- Система видеонаблюдения;
- Система контроля и управления доступом в жилой дом, в автостоянку и на придомовую территорию;
- Автоматизированная система коммерческого учета электропотребления;
- Автоматизированная система коммерческого учета водопотребления и теплопотребления;
- Автоматизация комплексная;
- Автоматизированная система диспетчерского контроля и управления;
- Система пожарной автоматики жилого дома;
- Система пожарной автоматики автостоянки.










