Полное наименование: Многофункциональный жилой комплекс с подземными автостоянками и ДОУ на 160 мест, расположенные по адресу: г. Санкт-Петербург, проспект Мечникова, дом 40, лит. А, кадастровый номер земельного участка 78:10:0005142:1456
Генподрядчик: ООО «АКБ Проксима»
Дата реализации: 2023
Вендоры: РТС, СДК Кристалл
Разработанные разделы:
- Сети связи: Радиофикация (РФ), телефонизация, система коллективного приема телевидения, ООГМЦ и РАСЦО;
- Системы безопасности: Система видеонаблюдения. Система контроля доступа. Охранная сигнализация;
- Автоматизированная система управления и диспетчеризации;
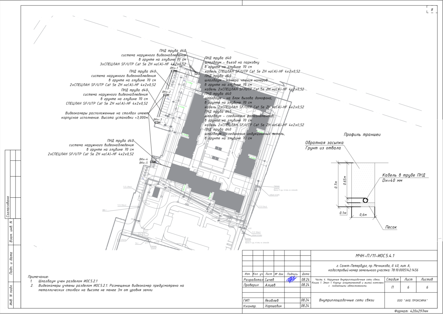
- Наружные внутриплощадочные сети связи.


