Полное наименование: Модернизация цеха №17 по адресу: г. Ярославль, Московское шоссе, д.130
Заказчик: ПАО «Славнефть-ЯНОС»
Генподрядчик: ООО «СеверПроектСтрой»
Дата реализации: 2024
Вендоры: IEK, Mitsubishi Electric, Phoenix Contact, VEDA, ДКС, ОВЕН, ЭМИС-Прибор
Разработанные разделы:
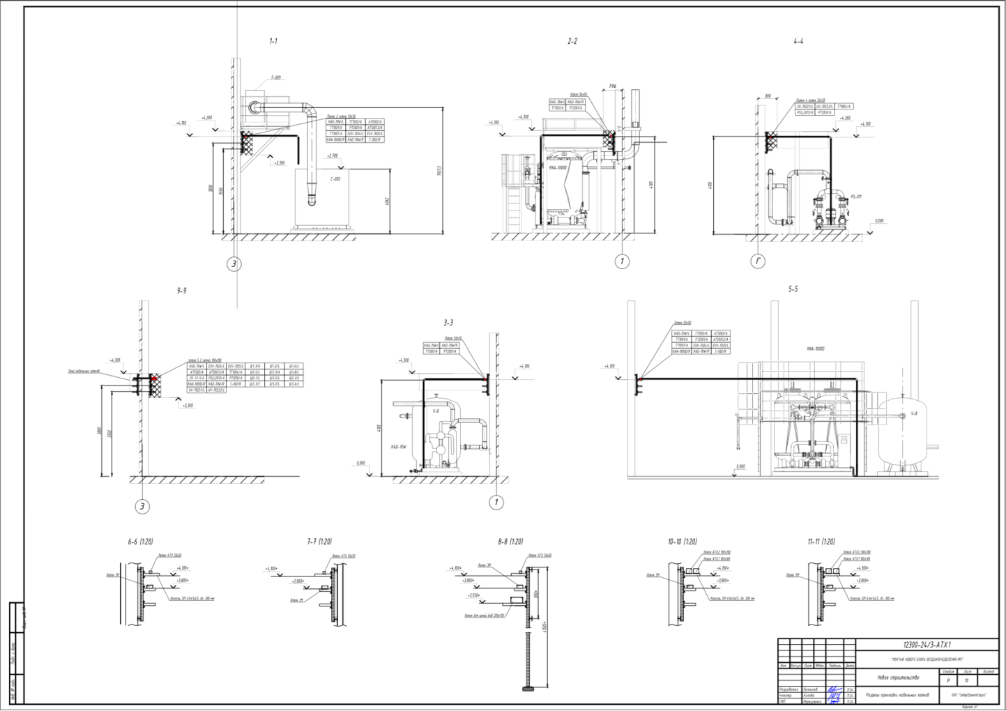
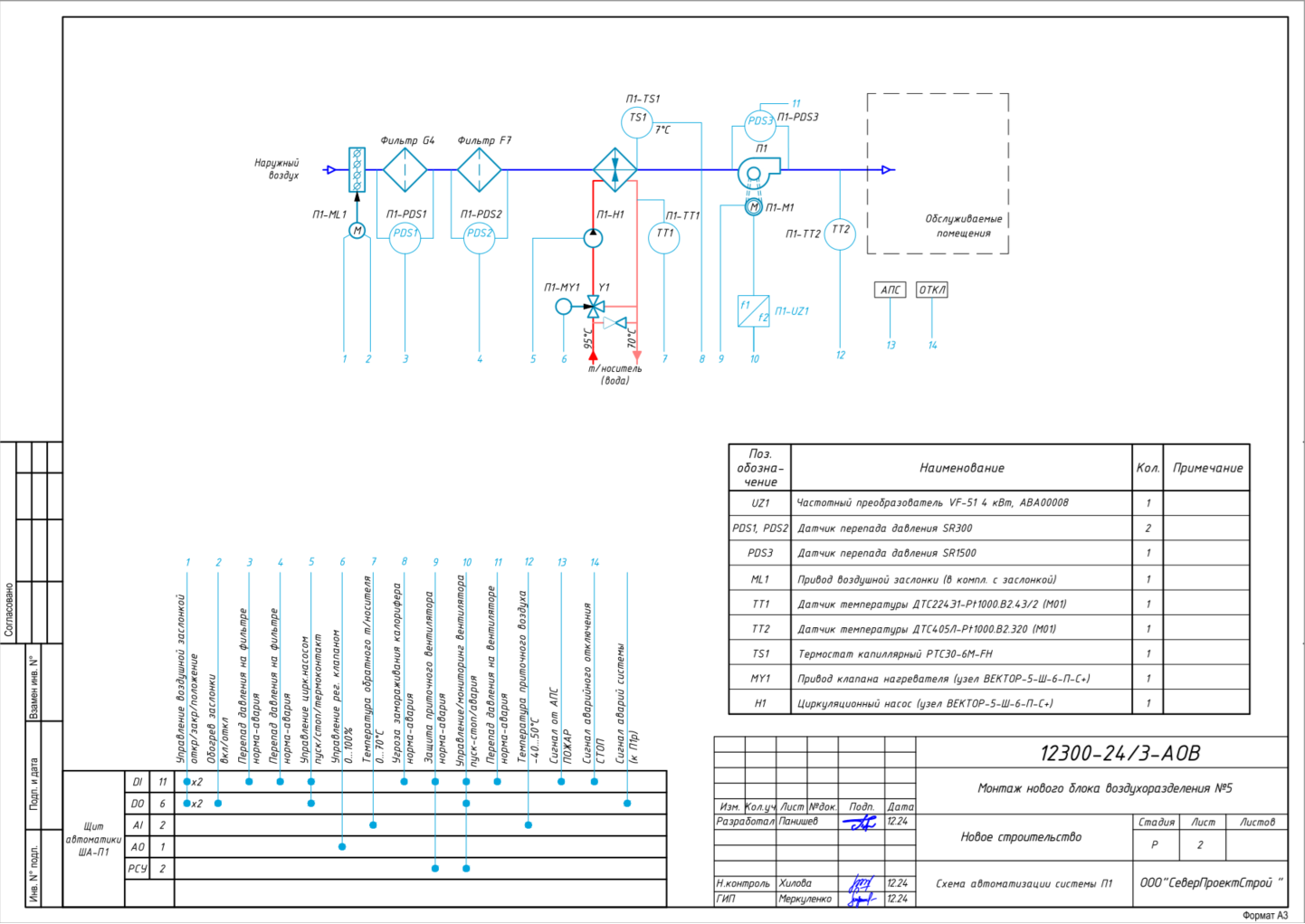
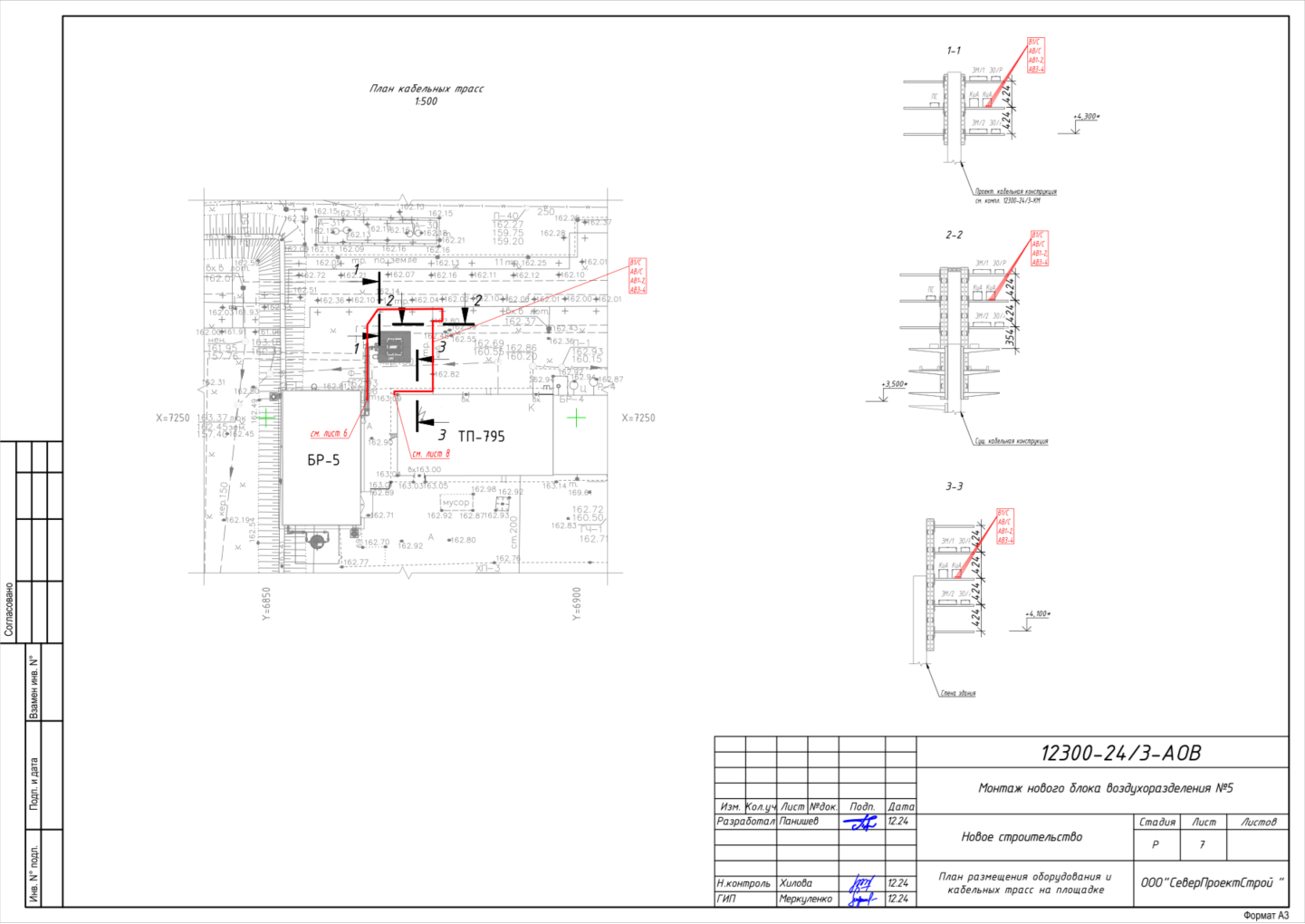
- Автоматизация технологического процесса;
- Автоматизация системы вентиляции;
- Дооснащение шкафа РСУ.





