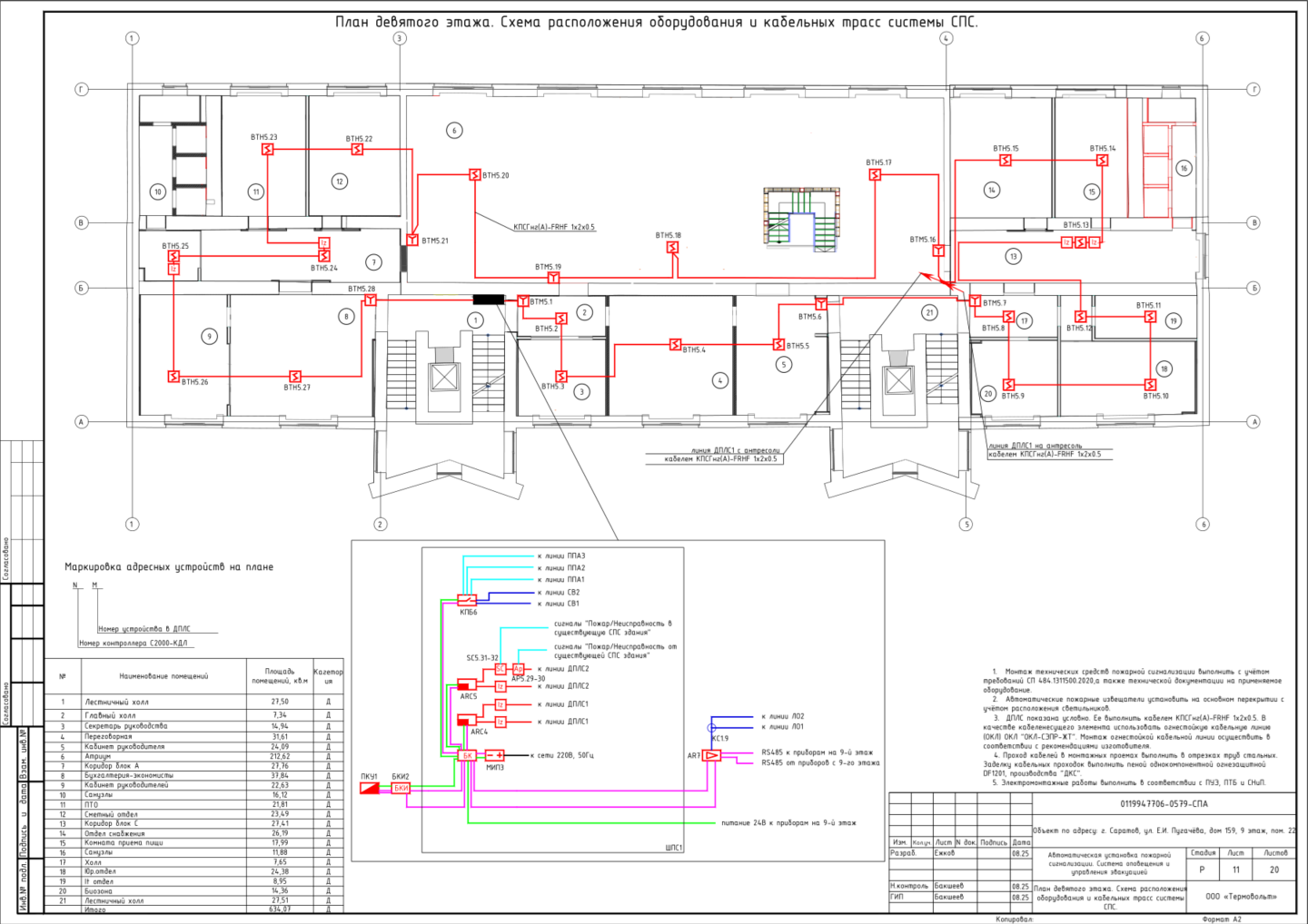
АППЗ, АПС, СОУЭ Полное наименование: Объект по адресу: г. Саратов, ул. Е.И. Пугачева, дом 159, 9 этаж, пом.22Заказчик: АО «ТГИ»Генподрядчик: ООО «Термовольт»Дата реализации: 2025Вендоры: IEK, Болид, ДКС, Промрукав Смотрите также: Сети связи административного здания Капитальный ремонт административного здания по адресу: г. Москва, Прудовой проезд 13, стр. 7 Сети связи административного здания Административное здание по адресу: г. Москва, ул. 2-я Хуторская, д. 38А, стр. 8 Слаботочные системы административного здания Реконструкция административных зданий МВД России по адресу: г. Москва, Газетный пер., д.6, 7