Полное наименование: Строительство дорожно-эксплуатационной базы по адресу: поселение Роговское, Троицкий административный округ г. Москвы
Генподрядчик: ООО «ГеоИнжПроект»
Дата реализации: 2024
Вендоры: Cabeus, DSSL, IEK, Optimus, Болид, ДКС, Промрукав, Световые технологии, ЦМО
Разработанные разделы:
- Система электроснабжения;
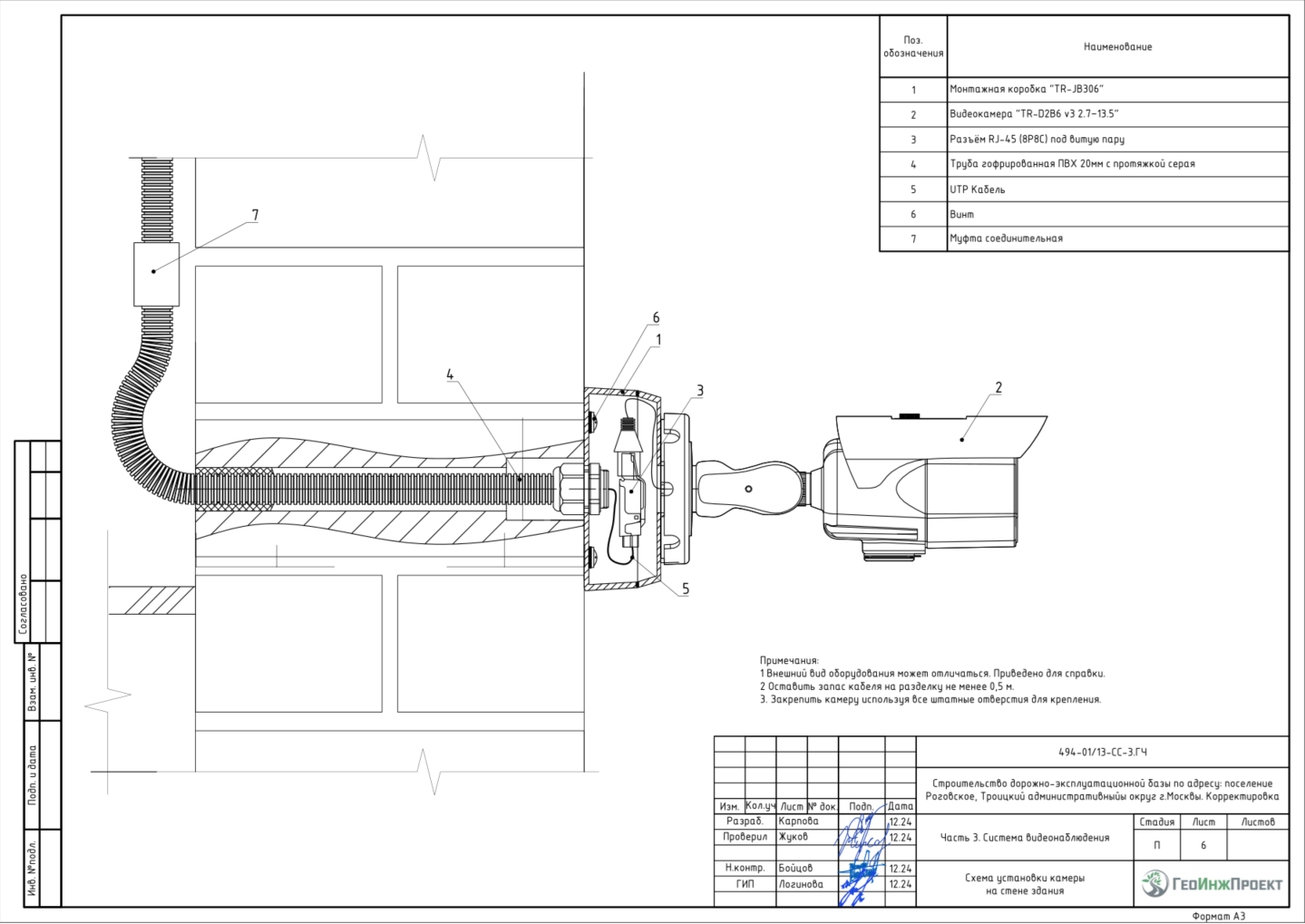
- Система видеонаблюдения;
- Охранная сигнализация;
- Пожарная сигнализация;
- Система оповещения и управления эвакуацией людей при пожаре.


