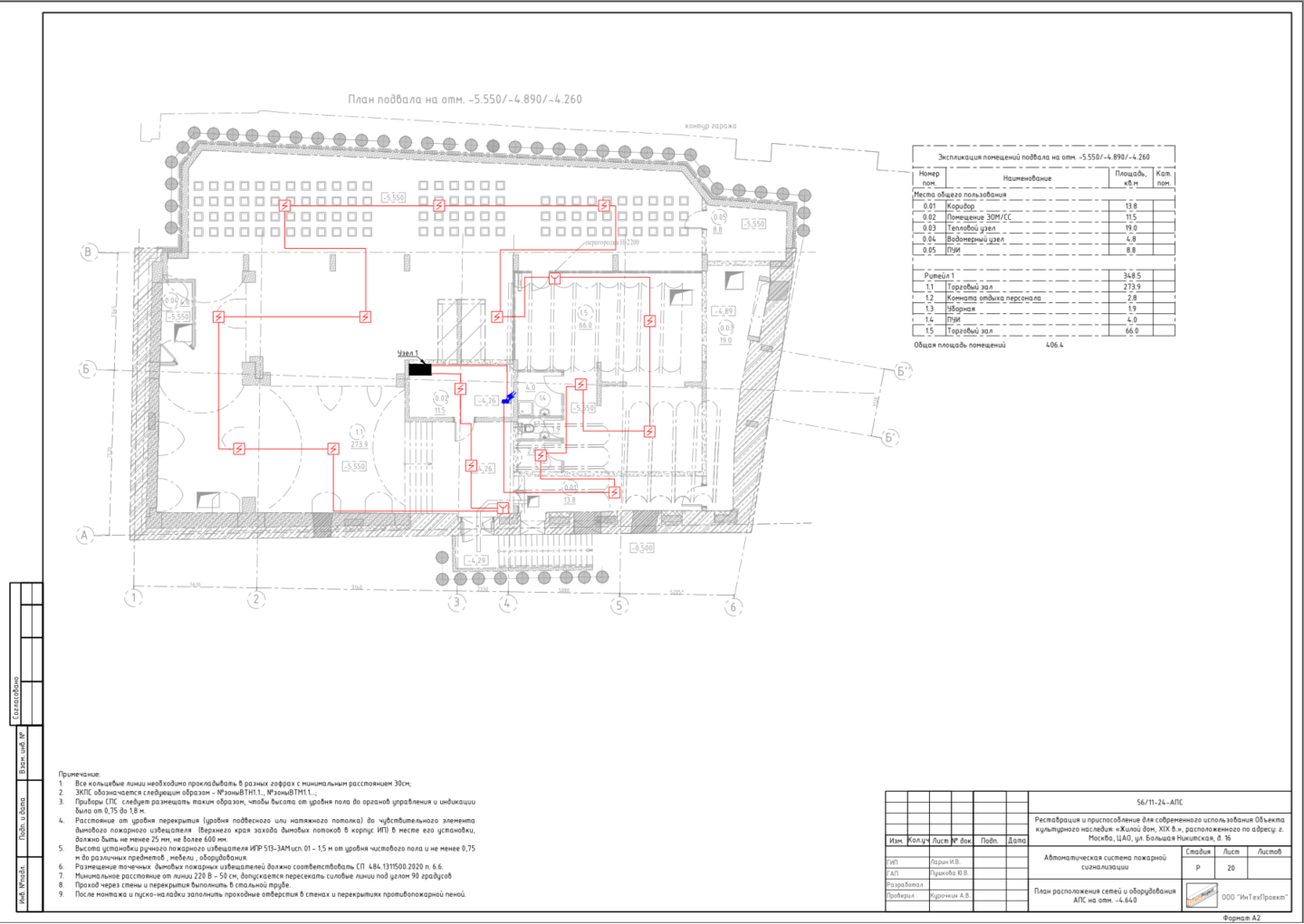
Полное наименование: Реставрация и приспособление для современного использования выявленного объекта культурного наследия: «Жилой дом, XIX в.», расположенный по адресу: г. Москва ЦАО ул. Большая Никитская д.16
Заказчик: ООО «Легенда»
Генподрядчик: ООО «ИнТехПроект»
Дата реализации: 2024
Вендоры: BAS-IP, Cabeus, Hyperline, IEK, Picocell, Schneider Electric, Smartec, Wago, Авангард, Бастион, ДКС, Корпорация ИнформТелеСеть, Луис+, МЕТА, Промрукав, Рубеж, Связьстройдеталь, Элтекс
Разработанные разделы:
- Структурированная кабельная система;
- Радиофикация;
- Система контроля и управления доступом;
- Автоматическая система пожарной сигнализации;
- Система оповещения и управления эвакуацией людей при пожаре;
- Система усиления сигнала сотовой связи.



